BIRNBECK PIER

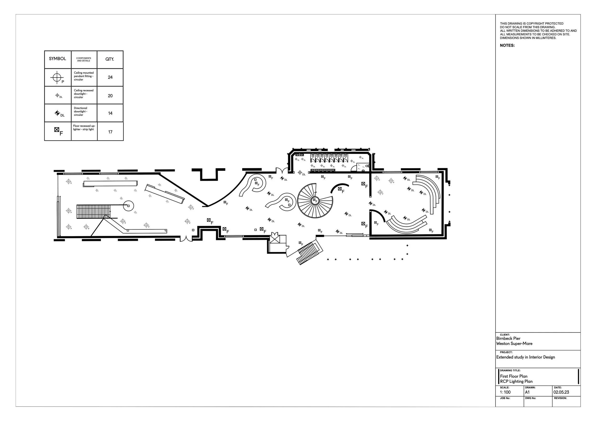
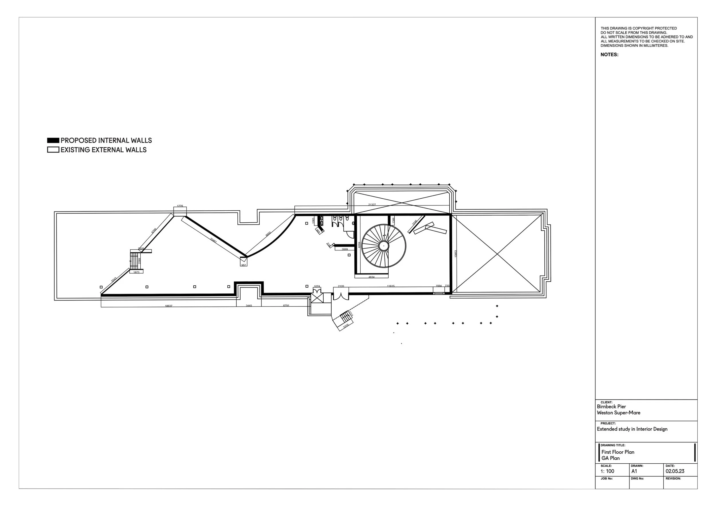
Birnbeck Pier is a site that has faced years of neglect, failed fundraisers and empty promises. My proposal focuses on turning the site into a creative and cultural hub, offering tourists and locals entertainment facilities and social settings. The structure of the building is built around an inner core, otherwise called the ‘spine’, which is a deconstructed version of the decaying pier. The ‘spine’ runs through the building offering confusing yet dynamic spaces, that appear as features such as walls and seating.

The aim of this project was to create a flexible space that houses private and public areas. The space i am developing is the main pavillion, the site will bring together a community in a way that the original pier also did, but with an understanding of modern interests. It is a creative and cultural hub, a space to bring together residents and tourists, and expose the creative potential of a town picked up and dropped.

The interior and exterior choices play on the idea of abandonment. It is a project that confronts the decades of decline that is down to big ideas and little funding. It confronts the lack of urgency to develop a site that matters to the community of Weston-Super-Mare. The project also pays homage to the durability of the materials, which despite years of decay, are still apparent.

The building is composed of juxtapositions, shining light on the contradictions of the site, a pier once bustling with life left to decay and rot. A site that has faced hundreds of big ideas with little funding, and a lack of urgency to reform a space valued by locals.   

These juxtapositions take on different bodies, they are found in the contrasts in lighting, space and materials. Visitors will go on an emotional and physical journey when exploring the space, un clear whether they feel relaxed or unsettled.

It is a project that meets the old and the new. An exploration into the meeting of uncanny and feelings of possibility and potential; a space that is haunted with the past but is also a structure of hope for the future. It is confronting whilst also inviting.

A juxtaposition.

Next
Next

The Love Inn